August 2025
Ny tilbygning
01/08/ 2025
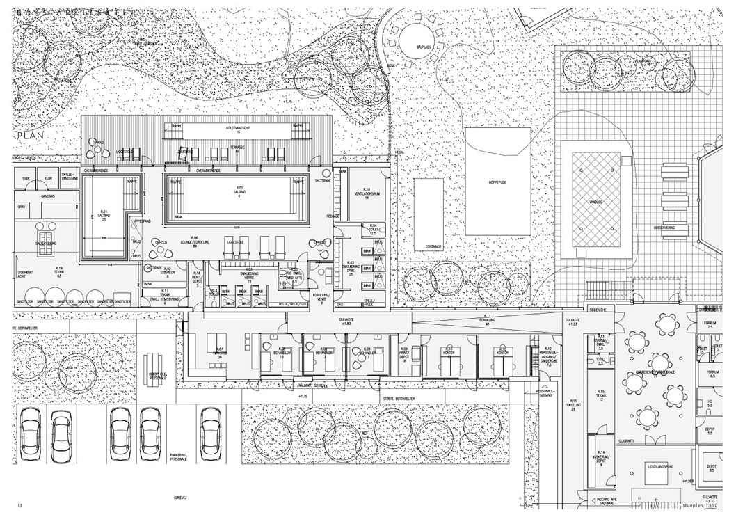
Endelig kom de nye visualiseringer af tilbygningen. 625 kvm med helt nyt badområde, administration, værksted og behandlerrum. Opstart august 2025 og forventet afsluttet oktober 2026.
Samlet budget 28.000.000
Støttet af:






Samlet budget 28.000.000
Støttet af:





